Skip to main content
New announcement. Learn more
OUR PROJECTS
RESIDENTIAL FLOOR PLANS
MULTI-UNITS
DEMOLITION TO COMPLETION
CONTACT US
Contact Us
Contact Us
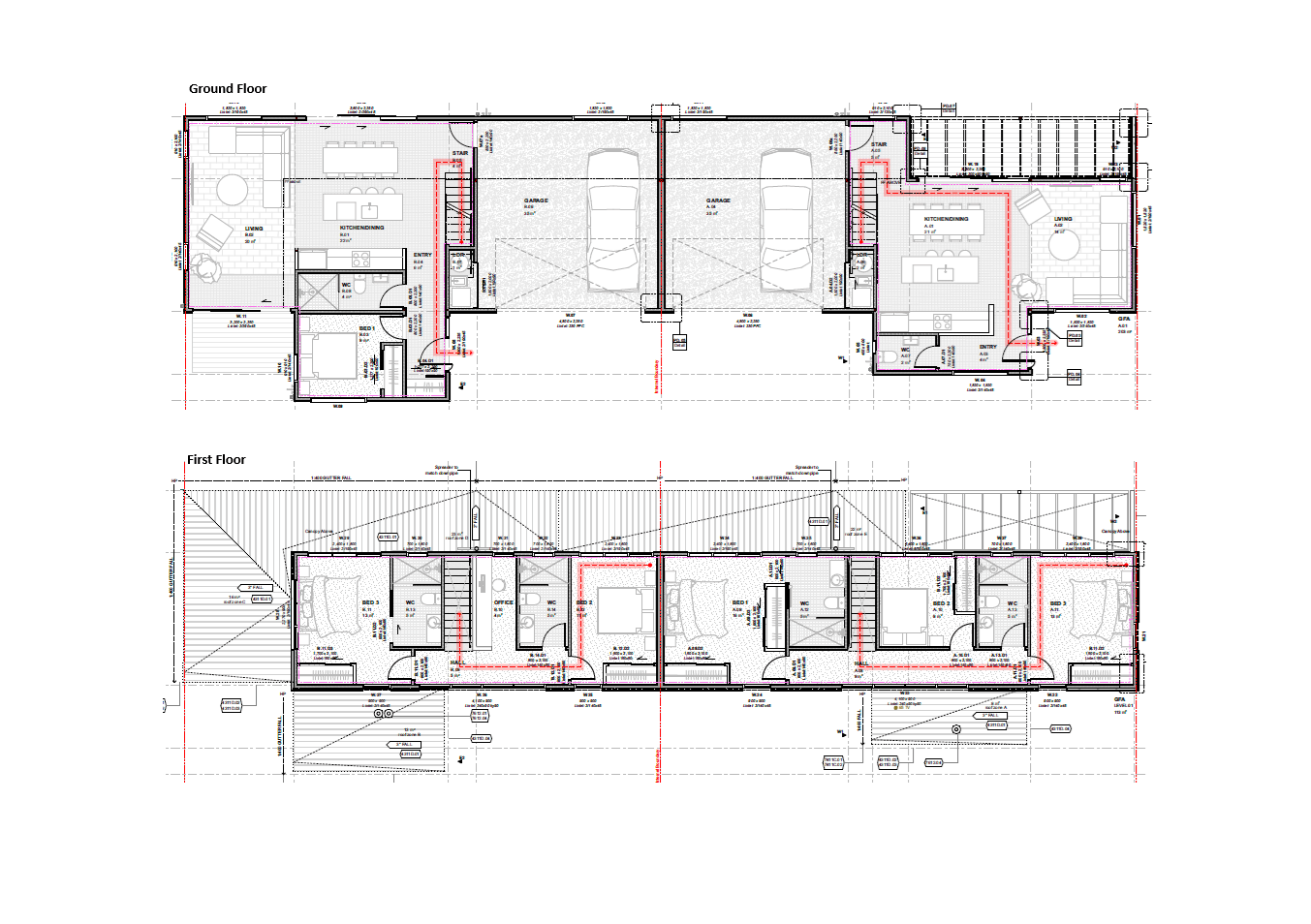
Rimu Street
316sqm
Contact us today for your free, no obligation quote!
Contact Us